TBD 2 County 3848 Road Poolville, TX 76487

UPDATED:
Key Details
Property Type Single Family Home
Sub Type Single Family Residence
Listing Status Active
Purchase Type For Sale
Square Footage 2,785 sqft
Subdivision Jm Morrison
MLS Listing ID 21141783
Bedrooms 3
Full Baths 3
HOA Y/N None
Lot Size 10.010 Acres
Acres 10.01
Property Sub-Type Single Family Residence
Property Description
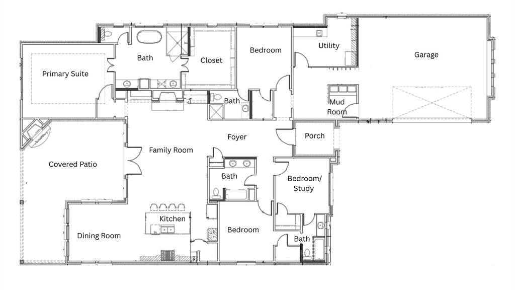
Thoughtfully designed for both comfort and flexibility, the home features 3 bedrooms, a private study, and a 3-car garage all set on 10 beautiful acres of rolling countryside with mature trees and open views. Enjoy quiet surroundings, room to expand, and the kind of space that's becoming increasingly hard to find.
Inside, an open-concept layout highlights a modern kitchen with a large quartz island, custom cabinetry, and sleek finishes, flowing seamlessly into spacious living and dining areas. High ceilings and abundant natural light create an inviting atmosphere ideal for both relaxed living and entertaining.
The primary suite offers a private retreat with a spa-style bath, walk-in shower, soaking tub, and generous closet space. Three additional bedrooms plus a dedicated study provide flexibility for guests, multi-generational living, hobbies, or a home office.
Step outside to a large covered patio overlooking your 10 acres, with room to add a pool, shop, barn, or additional structures, or simply enjoy the peace and privacy of wide-open land. Additional tracts are available, allowing buyers the opportunity to purchase more land and create a larger private estate.
This home captures the best of modern country living—contemporary comfort, expansive land, and long-term flexibility—all within Poolville ISD.
Coming May 2026
Location
State TX
County Parker
Direction Take E Belknap St to TX-199 N Henderson St 3 min (0.6 mi) Head northwest on Commerce St toward E 3rd St ? 0.2 mi Use the 2nd from the left lane to turn left onto E Belknap St ? 0.4 mi ? Follow TX-199 to Co Rd 3849 in Wise County 50 min (38.7 mi) ? Drive to Co Rd 3848
Rooms
Dining Room 1
Interior
Interior Features Built-in Features
Fireplaces Number 1
Fireplaces Type Electric
Appliance Dishwasher
Exterior
Garage Spaces 3.0
Utilities Available Aerobic Septic
Total Parking Spaces 3
Garage Yes
Building
Story One
Level or Stories One
Schools
Elementary Schools Poolville
High Schools Poolville
School District Poolville Isd
Others
Acceptable Financing Cash, Conventional, FHA, VA Loan
Listing Terms Cash, Conventional, FHA, VA Loan
HOA Association Type None

GET MORE INFORMATION



