215 Julian Davis Drive Venus, TX 76084

UPDATED:
Key Details
Property Type Single Family Home
Sub Type Single Family Residence
Listing Status Active
Purchase Type For Sale
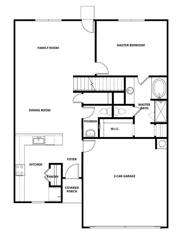
Square Footage 2,733 sqft
Subdivision Patriot Estates
MLS Listing ID 21142683
Style Traditional
Bedrooms 5
Full Baths 2
Half Baths 1
HOA Fees $183
HOA Y/N Mandatory
Year Built 2025
Lot Size 6,860 Sqft
Acres 0.1575
Property Sub-Type Single Family Residence
Property Description
Location
State TX
County Johnson
Direction From Dallas, take HWY 67 S. Turn right on Patriot Parkway to Information Center From Fort Worth, take I-35 West. Turn Left on Hwy 67. Turn Left on Patriot Parkway to Information Center.
Rooms
Dining Room 1
Interior
Interior Features Cable TV Available, Granite Counters, High Speed Internet Available, Open Floorplan, Pantry, Walk-In Closet(s), Wired for Data
Heating Central, Natural Gas
Cooling Ceiling Fan(s), Central Air, Electric
Flooring Carpet, Laminate
Appliance Dishwasher, Disposal, Gas Range, Gas Water Heater, Ice Maker, Microwave, Plumbed For Gas in Kitchen, Refrigerator, Tankless Water Heater, Vented Exhaust Fan
Heat Source Central, Natural Gas
Exterior
Garage Spaces 2.0
Fence Back Yard, Privacy, Wood
Utilities Available Cable Available, City Sewer, City Water, Community Mailbox, Electricity Available, Individual Gas Meter, Individual Water Meter, Natural Gas Available, Sidewalk
Roof Type Composition,Shingle
Total Parking Spaces 2
Garage Yes
Building
Story Two
Foundation Slab
Level or Stories Two
Structure Type Brick,Siding
Schools
Elementary Schools Venus
Middle Schools Venus
High Schools Venus
School District Venus Isd
Others
Acceptable Financing Cash, Contract, Conventional, FHA, USDA Loan, VA Loan
Listing Terms Cash, Contract, Conventional, FHA, USDA Loan, VA Loan
HOA Association Type Mandatory

GET MORE INFORMATION



